New Listings
0
For Sale
$359,000.00

315 Sheriff Street
Grand-Sault/Grand Falls, New Brunswick, E3Z3A3

Share
NB132914

Step into timeless character blended beautifully with modern updates in this spacious, remodeled older home. The main floor features a stunning, oversized living room with rich wood flooring, expansive windows that flood the space with natural light, and a cozy working wood-burning fireplace. The dining room is generously sized, while the updated kitchen boasts classic wood cabinetry, sleek quartz countertops, and a quaint eat-in nook. Youll also love the huge main-floor family room, which showcases custom built-in bookshelves, two sliding glass doors, and another large window to let in plenty of natural light. A convenient half bathroom and a well-placed laundry area round out the main floor. Upstairs, the spacious master bedroom offers a peaceful retreat, accompanied by three additional bedrooms and a fully remodeled 4-piece bathroom. Original wood floors continue throughout. The basement has seen recent updates, including new flooring in the living area, bathroom, and non-conforming bedroom. Adding even more living space, with oversized family room, a 3-piece bathroom, a sauna, and a dedicated workspace. Set on an oversized lot, this property offers exceptional outdoor space and privacy. Mature hedges surround the yard, creating a secluded atmosphere. In addition the property includes both a single detached garage and a carport. With a perfect balance of vintage character and modern comfort, this home is truly one-of-a-kind. (id:52657)

  • Property Type Single Family
  • Listing Key NB132914
  • Price $359,000.00
  • Year Built 1940
  • Bedrooms 4
  • Full Bathrooms 3
  • Half Bathrooms 1
  • House Size 1886.0 square feet
  • Floor Coverings Ceramic, Vinyl, Wood
  • Heating Type(s) Heat Pump, Baseboard heaters, Wood
  • Lot Size 1620.0 square meters
  • Parking Features Detached Garage, Garage, Carport
  • Exterior Features Wood
  • Taxes $4,108.42
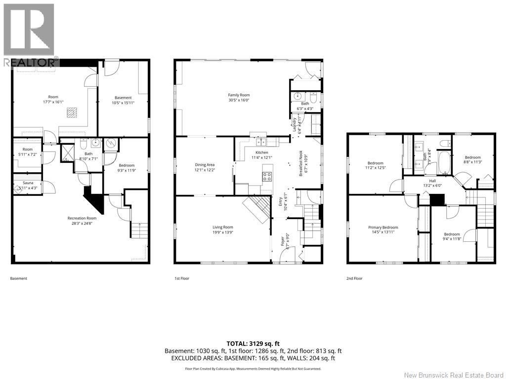
Level Type Dimensions
Basement Other 14' x 18'
Office 9'5'' x 9'9''
3pc Bathroom 6' x 8'8''
Family room 24' x 24'
Second level 3pc Bathroom 7'8'' x 8'
Bedroom 9'6'' x 12'
Bedroom 11'6'' x 11'3''
Bedroom 8'6'' x 11'
Primary Bedroom 16' x 15'
Main level Foyer 9' x 7'
Laundry room 6' x 5'
Solarium 13' x 7'8''
2pc Bathroom 6' x 4'
Family room 17' x 23'
Living room 14' x 20'
Dining room 12' x 12'
Kitchen 18' x 11'
EXIT Realty Elite The trademarks MLS®, Multiple Listing Service® and the associated logos are owned by The Canadian Real Estate Association (CREA) and identify the quality of services provided by real estate professionals who are members of CREA. The trademarks REALTOR®, REALTORS® and the REALTOR® logo are controlled by CREA and identify real estate professionals who are members of CREA.

Need help finding the Perfect Property?

Contact with one of our Professional Licensed Agents